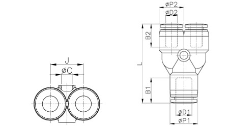
| MODEL | ¢D1 | ¢D2 | ¢P1 | ¢P2 | L | J | ¢C | B1 | B2 | ORIFICE | WEIGHT(g) | BOX(EA) |
| PW0604 | 6 | 4 | 13.0 | 10.5 | 37.6 | 10.5 | 3.3 | 17.6 | 16.0 | 3.3 | 7.0 | 100 |
| PW0804 | 8 | 4 | 14.8 | 10.5 | 39.1 | 10.5 | 3.3 | 18.6 | 16.0 | 3.2 | 9.0 | 50 |
| PW0806 | 8 | 6 | 14.6 | 13.0 | 41.7 | 13.0 | 3.3 | 18.6 | 17.6 | 5.0 | 11.0 | 50 |
| PW1006 | 10 | 6 | 17.5 | 13.0 | 43.0 | 13.0 | 3.3 | 19.8 | 17.4 | 5.0 | 13.0 | 50 |
| PW1008 | 10 | 8 | 17.5 | 14.6 | 44.5 | 14.6 | 4.3 | 19.8 | 18.6 | 5.0 | 15.0 | 50 |
| PW1208 | 12 | 8 | 21.0 | 14.8 | 47.4 | 14.8 | 3.3 | 22.2 | 18.6 | 6.4 | 20.0 | 25 |
| PW1210 | 12 | 10 | 21.0 | 17.5 | 50.7 | 17.5 | 4.5 | 22.8 | 19.9 | 7.0 | 24.0 | 25 |







